Comparer les annonces

Spacious villa near the sea

€719,000

For sale in Cabras, in the heart of the Sinis peninsula and just a few kilometers from the renowned beaches of Sardinia’s western coast, a spacious detached villa with private garden and the possibility of building a swimming pool, as shown in the illustrative image.

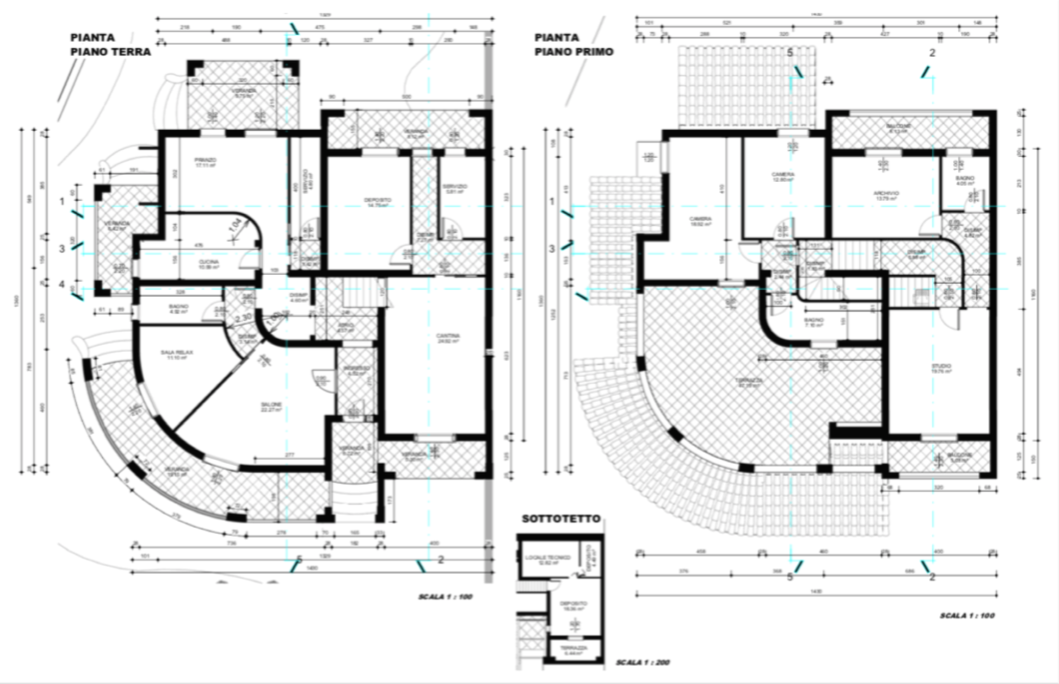
Built in 2013 and in excellent condition, the property is free on three sides and stands on a 612 m² plot, offering a total living area of 260 m². Currently divided into six self-contained apartments, it represents a versatile solution, suitable either as a private residence for a large family or as an ideal investment for a tourist accommodation business (B&B or short-term rentals). The units can also be combined to create a single prestigious villa.

Layout of the apartments

3 on the ground floor
1 on the first floor
1 on the mezzanine level
1 in the attic

Features of each apartment

Living room with kitchenette
Double bedroom
Bathroom with shower box
Balcony, veranda, or terrace
Windows in every room

Facilities and additional features

Four storage rooms with water heaters, washing machines, gas cylinders, cistern, and autoclave
Private well with submersible pump and irrigation system connected to the main water supply
Courtyard on three sides, fully fenced, with flowerbeds, fruit trees, and outdoor shower
Mediterranean-style garden with verandas and porticos
Natural stone perimeter wall with wrought iron railings ensuring both privacy and elegance
Key features
Living area: 260 m²
Plot: 612 m²
Residential units: 6 self-contained apartments
Total rooms: 7 bedrooms – 6 bathrooms – 6 kitchens
Year of construction: 2013
Excellent condition, move-in ready
Fully furnished
Outdoor parking spaces
Terraces and verandas
Private garden with option for swimming pool
Irrigation system with municipal water connection and private well
Air conditioning (hot/cold split units)
Heating: gas cylinders for kitchens + split units (hot/cold)
Connection to municipal sewage system
Custom-made furniture
Fixtures: wooden interiors, PVC exteriors with double glazing; double doors and shutters
Stoneware flooring
Additional water cistern
Water supply: Abbanoa + private well
Currently rented from June to September
No condominium or consortium fees
No irregularities or non-remediable building violations
Triple exposure

Highlights

Central yet quiet location, just steps from Cabras’ historic center
Close to the sea and the most renowned beaches of the Sinis (Is Arutas, Mari Ermi, San Giovanni di Sinis)
Flexible layout: ideal as a private residence or for tourist accommodation
Private garden with possibility of swimming pool.

 

Adresse

  • Municipality: Cabras
  • Province: Oristano (Ouest)
  • Locality: Cabras
  • Tourist locality: Sinis
  • Country: Italie

Détail

  • Statut: Vente
  • Prix: €719,000
  • Type de bien: Cabras
  • Surface: 612
  • Chambres: 7
  • Salles de bain 6
  • Aire d'atterrissage: 300

Caractéristiques